122平北欧风四居室整体空间的线条非常的简单,极简的效果让空间看起来格外的宽敞。加上明亮的设计和充沛的互动空间,让整体看起来更加的温馨、和谐。

干净留白的大面主墙採水泥粉光表现,透过自然地涂刷肌理表现手感温度。

以精实预算与精湛地空间规划技巧,满足屋主在风格与机能面的期待。从细节中讲究整体空间的丰富度。

拉升高度的钢刷木皮门片周匝框饰同材质门框,挑高空间感外亦创造视觉层次。

大面留白的空间内安排一面斑驳却灿烂的仿旧主墙,贴合风格主题设定并成为视觉焦点。

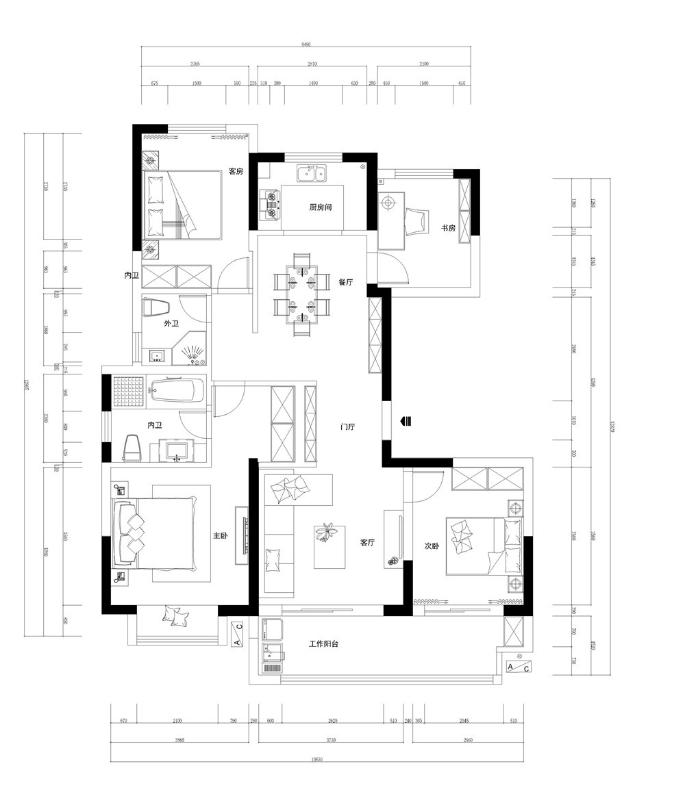
户型图
122平北欧风四居室整体空间的线条非常的简单,极简的效果让空间看起来格外的宽敞。加上明亮的设计和充沛的互动空间,让整体看起来更加的温馨、和谐。

干净留白的大面主墙採水泥粉光表现,透过自然地涂刷肌理表现手感温度。

以精实预算与精湛地空间规划技巧,满足屋主在风格与机能面的期待。从细节中讲究整体空间的丰富度。

拉升高度的钢刷木皮门片周匝框饰同材质门框,挑高空间感外亦创造视觉层次。

大面留白的空间内安排一面斑驳却灿烂的仿旧主墙,贴合风格主题设定并成为视觉焦点。

户型图